![]() |
La pièce Mors Mobile (Doc 2) est actuellement réalisée en 2 phases. L’acquisition d’un nouveau centre d’usinage 4 axes (Doc 4) remet en cause le cycle de fabrication. Un technicien de méthode est chargé de mener une étude visant à réduire le nombre de posages et diminuer ainsi les temps d’usinage. |
![]() |
On envisage la réalisation de la phase 10 de la pièce Embase (Page 2) sur un Centre d’Usinage Vertical HAAS (Page 8). Un technicien du bureau des méthodes est chargé de constituer le dossier de fabrication relatif à cette phase (Contrat de phase et programme CN) |
![]() |
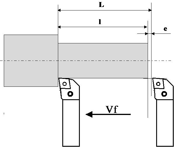
Calculer un temps d’usinage et compléter une fiche de phase |
![]() |
Programmation Épaulement Arrondi Programmation Épaulement Programmation Hexagone Programmation lumière Programmation Poche |
![]() |
La réalisation du Flasque inférieur du Porte-Stylos en Phase 30 nécessite l’emploi d’outils de coupe tels que forets ou fraises en ARS *. La société TITEX, spécialiste de ce type d’outillage, propose un catalogue électronique permettant de réaliser le choix optimal des outils et des paramètres d’usinage associés. |




